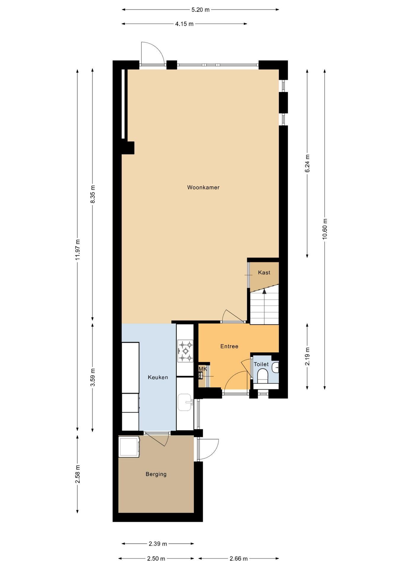
Woonoppervlakte
Circa 118 m²
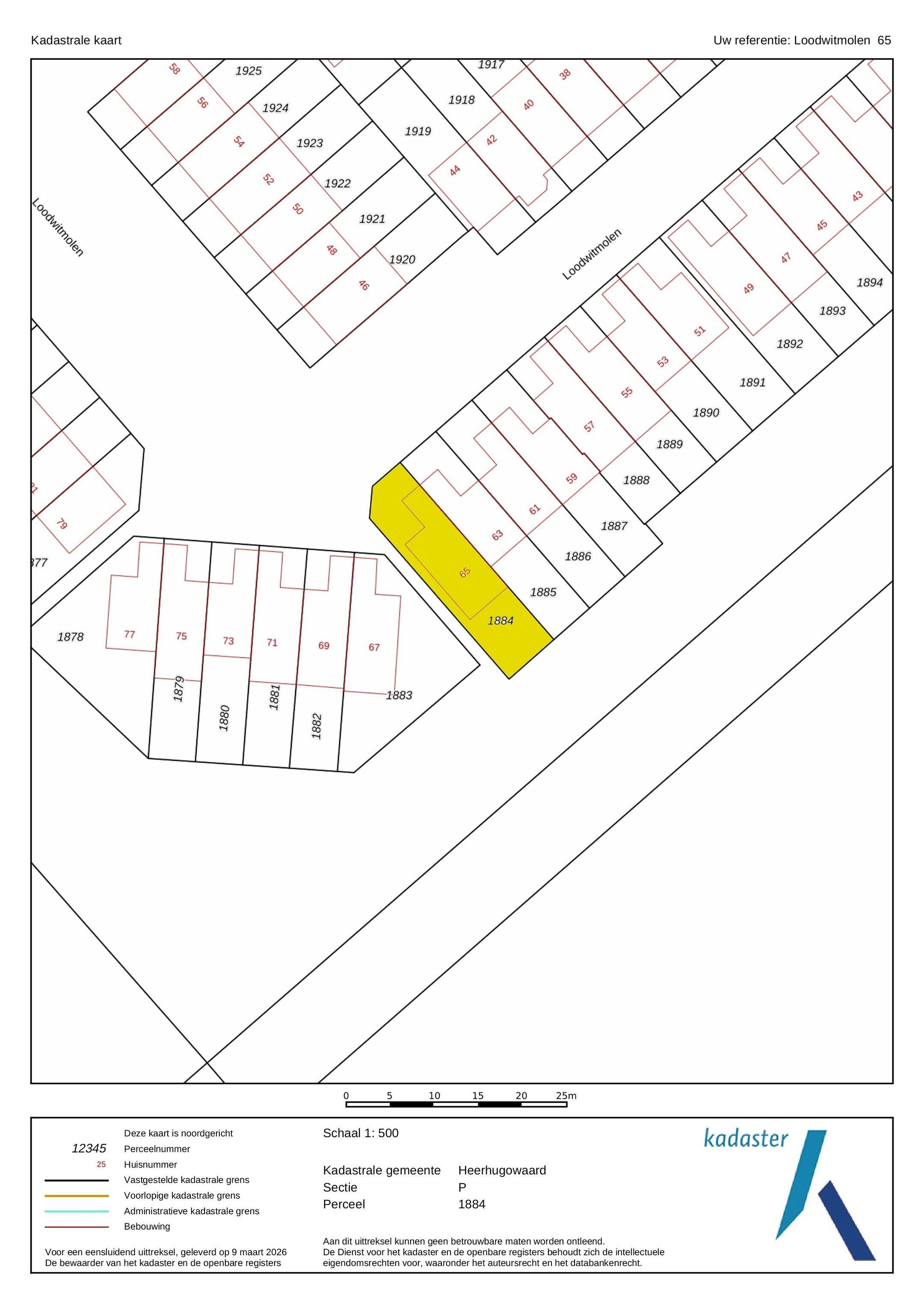
Perceeloppervlakte
Circa 178 m²
Bouwjaar
Gebouwd in 1987
Aantal kamers
6 kamers (5 slaapkamers)

Loodwitmolen 65

1703 VB, Heerhugowaard (Noord-Holland)

RUIME HOEKWONING MET UITBOUW, VIJF SLAAPKAMERS EN VEEL PRIVACY!

Deze uitstekend onderhouden HOEKWONING heeft alles in huis voor comfortabel en ruim wonen. Dankzij de UITBOUW VAN 2,5 METER aan de achterzijde geniet je van een heerlijke, lichte woonkamer met volop leefruimte. Met maar liefst VIJF SLAAPKAMERS, een nette keuken en badkamer en een verzorgde afwerking is dit een ideale gezinswoning waar je zó in kunt.

De woning is volledig geïsoleerd, beschikt over een PVC vloer, betonnen verdiepingsvloeren en heeft energielabel B. De praktische berging aan de voorzijde is binnendoor bereikbaar. De achtertuin is heerlijk op ZUID-OOST en beschikt over een stenen berging.

Wat deze woning extra bijzonder maakt, is de ligging: geen directe buren aan de achterzijde, waardoor je hier geniet van veel privacy en een vrij gevoel. En dat terwijl je ontzettend centraal woont, met alle voorzieningen zoals scholen, kinderopvang, sportfaciliteiten en winkelcentrum Middenwaard op korte afstand. Ook de uitvalswegen richting Alkmaar, Amsterdam en Hoorn zijn snel bereikbaar.

Verrassend ruim, uitgebouwd en met maar liefst vijf slaapkamers, is deze HOEKWONING aan de Loodwitmolen 65 een echte gezinskans!

Nieuwsgierig? Check de EXCLUSIEVE EIGEN WEBSITE VAN DE WONING (Loodwitmolen65.nl) voor meer informatie over de woning en de omgeving via de site van EV Wonen Makelaardij.

BEZICHTIGING: plan eenvoudig een afspraak via Funda of de website van EV Wonen Makelaardij. We laten deze leuke woning graag aan je zien!

BIJZONDERHEDEN
- Hoekwoning met 5 slaapkamers
- Woonoppervlakte ca. 118 m²
- Uitgebouwde woonkamer
- Zonnige achtertuin op het zuidoosten
- Drie betonnen woonlagen
- Inpandige bijkeuken/berging
- Volledig geïsoleerd (dak, muur, vloer en dubbel glas)
- Rustige en autoluwe ligging
- Vrijstaande stenen berging

LOCATIE:
Je woont hier in een rustige straat in een fijne, kindvriendelijke woonwijk. In de directe omgeving vind je alles wat je nodig hebt: supermarkten, scholen, sportfaciliteiten, speeltuinen en wandelparken. Dankzij de gunstige ligging zijn ook het openbaar vervoer en uitvalswegen goed bereikbaar. Een plek waar je rustig woont, maar toch alle voorzieningen binnen handbereik hebt.

INDELING:

BEGANE GROND
Via de entree kom je in de hal met meterkast en trapopgang. De woonkamer is uitgebouwd en daardoor heerlijk ruim. De afwerking bestaat uit een PVC vloer en er is een praktische trapkast aanwezig.

De half open keuken is voorzien van een tegelvloer en diverse inbouwapparatuur, waaronder een 5-pits gaskookplaat, RVS wasbak, combimagnetron, koelkast, vaatwasser en afzuigkap.

Aansluitend vind je de inpandige bijkeuken/berging, ideaal voor de wasmachine, droger en het stallen van fietsen. Deze ruimte is binnendoor bereikbaar vanuit de keuken.

EERSTE VERDIEPING
Op de eerste verdieping bevinden zich drie slaapkamers, allemaal afgewerkt met laminaatvloeren.

De badkamer is praktisch ingericht en voorzien van een toilet, douche, een breed wastafelmeubel, een raam en mechanische ventilatie.

TWEEDE VERDIEPING
Via de vaste trap bereik je de tweede verdieping met nog eens twee slaapkamers. Op de voorzolder vind je de opstelling van de cv-installatie en de hete lucht verwarming. Dankzij de dakramen is ook deze verdieping prettig licht.

TUIN
De achtertuin ligt gunstig op het zuidoosten en is netjes aangelegd en onderhoudsvriendelijk. Hier kun je heerlijk genieten van de zon en het buitenleven. Daarnaast is er een vrijstaande stenen berging aanwezig voor extra opslag.

PARKEREN
Parkeren doe je voor de woning waar voldoende openbare parkeergelegenheid aanwezig is.

Loodwitmolen 65 is een ruime en praktische gezinswoning met volop mogelijkheden, een fijne tuin en een rustige ligging. Een ideale plek om jarenlang met plezier te wonen.

Aanvaarding: in overleg. Lees de volledige omschrijving

Plattegronden

Overdracht

Vraagprijs
€ 415.000 k.k.
Status
Verkocht

Bouw

Object type
Eengezinswoning, hoekwoning
Soort bouw
Bestaande bouw
Bouwjaar
1987
Soort dak
Zadeldak bedekt met pannen

Oppervlakte en inhoud

Woonoppervlakte
118 m²
Perceeloppervlakte
178 m²
Inhoud
438 m³
Externe bergruimte
6 m²

Indeling

Aantal kamers
6 kamers (5 slaapkamers)
Aantal badkamers
1 badkamer en 1 apart toilet
Badkamervoorzieningen
Douche, toilet, en wastafelmeubel
Aantal woonlagen
3 woonlagen
Voorzieningen
Dakraam, mechanische ventilatie, en TV kabel

Energie

Energielabel
B
Isolatie
Dakisolatie, dubbel glas, muurisolatie en vloerisolatie
Verwarming
Cv-ketel en heteluchtverwarming
Warm water
Cv-ketel
Cv ketel
Intergas ( combiketel uit 2010, eigendom)

Buitenruimte

Ligging
Aan rustige weg en in woonwijk
Tuin
Achtertuin en voortuin
Afmetingen achtertuin
53 m² (8,04 meter diep en 6,63 meter breed)
ligging tuin
Gelegen op het zuidoosten bereikbaar via achterom

Bergruimte

Schuur / berging
Vrijstaande stenen berging
Voorzieningen
Elektra

Parkeergelegenheid

Soort parkeergelegenheid
Openbaar parkeren

Actueel energieverbruik

Energielabel deze woning

Energielabel B

Publicatie energielabel:

Stroomverbruik per jaar

2600 kWh

Loodwitmolen 65, Heerhugowaard

Gasverbruik per jaar

1008 m³

Loodwitmolen 65, Heerhugowaard

Indicatie hypotheeklasten

Eigen inleg:
Spaargeld / overwaarde

Rente:
Laagste 10-jaars rente

Laagste 10-jaars rente

2,78% - Centraal Beheer - NHG


3,04% - Centraal Beheer - 80%

Laagste 20-jaars rente

3,29% - Centraal Beheer - NHG


3,52% - Centraal Beheer - 80%

Laagste 30-jaars rente

3,41% - Centraal Beheer - NHG


3,7% - Argenta - 80%


Hypotheek:

Bruto maandlasten: € 0 p/m

Netto maandlasten: € 0 p/m

Hoe berekenen we dit?

Het rentepercentage is gebaseerd op de laagste 10 jaars vaste rente voor één hypotheekdeel. De vermelde rente (3.04% zonder NHG) is gecontroleerd op 30-04-2026. Deze berekening is gebaseerd op een annuïteitenhypotheek die volledig wordt afgelost, waarbij de maandlasten gedurende de gehele looptijd gelijk blijven. De werkelijke rente en netto maandlasten kunnen variëren, afhankelijk van uw persoonlijke situatie en de hypotheekverstrekker. Raadpleeg een financieel adviseur voor een nauwkeurige berekening en advies. Aan deze berekening kunnen geen rechten worden ontleend; het dient enkel als indicatie.

Documentatie

Kadastrale kaart

Leefomgeving

Brochure woning

Plattegronden PDF

WOZ waarderapport

BAG uittreksel

Lijst van zaken

Bezoek onze website

Zonnegrenzen bekijken

Op de kaart

Inwoners in Heerhugowaard

Cijfers voor postcodegebied 1703

Totaal aantal inwoners
59045 inwoners
Mannen
51%
Vrouwen
49%

Inwoners in Heerhugowaard

Cijfers voor postcodegebied 1703

tot 15 jaar
17%
15 tot 25 jaar
13%
25 tot 35 jaar
25%
45 tot 65 jaar
27%
65 en ouder
18%

Huishoudens in Heerhugowaard

Cijfers voor postcodegebied 1703

Eenpersoons zonder kinderen
38%
Meerpersoons zonder kinderen
30%
Huishoudens zonder kinderen
68%

Huishoudens in Heerhugowaard

Cijfers voor postcodegebied 1703

Huishoudens met één kind
8%
Huishoudens met meerdere kinderen
24%
Huishoudens met kinderen
32%

Woningen in Heerhugowaard

Cijfers voor postcodegebied 1703

Woningen voor 1945
2%
Woningen tussen 1945 en 1965
1%
Woningen tussen 1965 en 1975
1%
Woningen tussen 1975 en 1985
67%
Woningen tussen 1985 en 1995
13%

Woningen in Heerhugowaard

Cijfers voor postcodegebied 1703

Woningen tussen 1995 en 2005
11%
Woningen tussen 2005 en 2015
3%
Woningen na 2015
2%
Huurwoningen
40%
Koopwoningen
60%

Overige in Heerhugowaard

Cijfers voor postcodegebied 1703

Gemiddelde WOZ waarde
€ 217.000,-
Personen onder de 65 met uitkering
10%

Overige in Heerhugowaard

Cijfers voor postcodegebied 1703

Adressen per km²
2176
Stedelijkheid (schaal 1 op 5)
80%
Postcode kaart 1703 Gemeente kaart dijk en waard

Korte feiten over Heerhugowaard

Heerhugowaard is een plaats in de gemeente Dijk en Waard, in de regio West-Friesland in de Nederlandse provincie Noord-Holland. Heerhugowaard hoort historisch gezien niet bij Kennemerland maar valt wel onder de gemeentelijke samenwerkingsregio Kennemerland via Noord-Kennemerland.

Indien u vragen heeft of u wilt een bezichtiging inplannen, dan kunt u gebruik maken van het formulier hiernaast. Er zal daarna op korte termijn contact met u worden opgenomen.

Rustenburgerweg 88

1703 RZ, Heerhugowaard

06 - 408 720 42 info@evwonen.nl www.evwonen.nl

Wie is EV Wonen Makelaardij?

Het verlaten van je oude woning of het ontdekken van je nieuwe droomhuis is een ongelooflijk opwindend proces voor de meeste van onze klanten. Er zijn zoveel besluiten te nemen en talloze factoren die invloed hebben op het behalen van het best mogelijke resultaat voor jou. Bovendien is de vraag naar woningen sterk gestegen en hebben de prijzen recordhoogtes bereikt.

In deze dynamische en vaak onvoorspelbare markt zijn wij de toonaangevende verkoopmakelaar in de regio, goed geïnformeerd over de lokale huizenmarkt en de verkoopmogelijkheden van jouw woning.

We hebben voor veel klanten uitstekende verkoop- of aankoopresultaten behaald. Wij volgen geen vaste methoden, omdat we geloven dat elke woning en verkoper uniek is. Bij ons kun je rekenen op een persoonlijke benadering. Ons succesgeheim is dat we alledaagse dingen buitengewoon goed uitvoeren.

Een huis met succes verkopen is geen eenvoudige taak. EV Wonen Makelaardij biedt:

– een solide verkoopstrategie;

– een eersteklas presentatie met altijd een toppositie op Funda;

– een gedreven en gecertificeerde Register Makelaar/Taxateur;

– proactief gebruik van sociale media;

– en een flinke portie lokale marktkennis.

Onze aanpak heeft de afgelopen jaren geleid tot een zeer hoge Funda klantbeoordeling van 9,5! Dit betekent dat klanten met een goed verkoopproces uitstekende verkoopresultaten hebben behaald.

We besteden veel aandacht aan jouw persoonlijke situatie en de specifieke kenmerken van jouw woning. Dit, in combinatie met een goede communicatie, garandeert een succesvol verkoop- of aankooptraject. Benieuwd wat we voor jou kunnen doen? We komen graag vrijblijvend langs voor advies op maat.

Naast Heerhugowaard zijn we ook actief als makelaar in Alkmaar, Oterleek, Langedijk, Hensbroek, Obdam en omgeving.

Wij kunnen je op een unieke en persoonlijke manier volledig ontzorgen als verkoopmakelaar of aankoopmakelaar bij de verkoop of aankoop van jouw woning.

Wie is EV Wonen Makelaardij?
Reviews EV Wonen Makelaardij

Loodwitmolen 65, Heerhugowaard

€ 415.000 k.k. - Verkocht

Helaas, deze woning is verkocht!

Net te laat, deze woning is al verkocht. Laat een zoekopdracht bij ons achter zodat wij u direct kunnen helpen wanneer er nieuw aanbod beschikbaar komt.